+36 20 942 09 94
info@xbuild.hu
Előző projektjeink
Főoldal slider - csömöri út
1. kép
ÖKO - HÁZ
MEGÚJULÓ ENERGIAFORRÁSOK
KÖRNYEZETKÍMÉLŐ
2. kép
ÖKO - HÁZ
MEGÚJULÓ ENERGIAFORRÁSOK
KÖRNYEZETKÍMÉLŐ
Csmriutcainzet.png
Csmriudvarihomlokzat.png
Bplet1ltvny.png
Bplet2ltvny.png
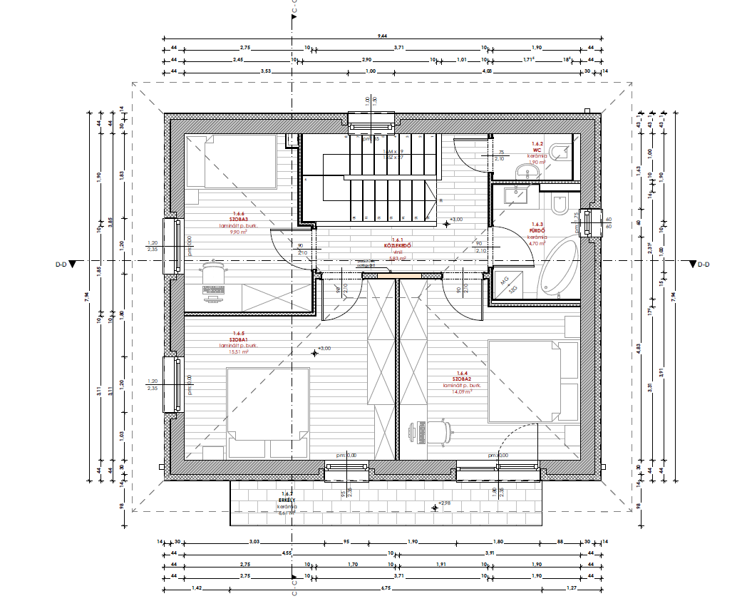
B épület: Emelet
Megtekintés
Letöltés
Tervezett műszaki tartalom:
Megtekintés
Letöltés
Date
2026. február 13
Tags
rajz, terv
View Project